Die WBG saniert Gebäude // April 2011
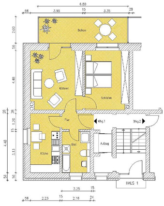
Ab April 2011 ging es los! Das Gebäude Karl-Marx-Platz 1-4 wurde „von Kopf bis Fuß“ runderneuert und auf Neubaustandard saniert. Insgesamt 32 großzügige Wohneinheiten mit jeweils 2 oder 3 Wohnräumen sind entstanden.
Alle Wohnungen wurden komplett modernisiert und erhielten eine gehobene Ausstattung. Die neuen Mieter genießen große Balkone, Bäder und Küchen mit Fenstern, neue Türen und eigene Parkplätze vor dem Haus.
Nachdem viele der Wohnungen reserviert waren, konnte ab September 2011 der Einzug beginnen.
